消防安裝
聯系我們
- 聯系人:郭經理
- 傳真:010-69552656
- 電話:400-0346-119
- 電話:010-57491119
- 郵箱:506665119@qq.com
- 地址:北京通州區M5運河1號3號樓403室
依愛電氣火災監控系統
依愛J-EI6711N系列剩余電流式電氣火災監控探測器
來源:依愛消防設備 時間:2017-03-01 15:42:19
依愛J-EI6711N系列剩余電流式電氣火災監控探測器(以下簡稱EI6711N探測器)具有電子編碼,唯一ID地址,可通過EI-DB6700型電氣火災監控設備在線設置地址或通過編碼器設置地址。內置單片機,固化可靠判斷程序,工作穩定可靠。
具有1個剩余電流檢測通道,可由監控設備設置通道的報警門限;探測器與剩余電流互感器為一體,簡化安裝;只使用總線即可工作,方便布線。

結構特征與工作原理
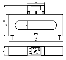
1. EI6711N探測器外形示意圖如圖1所示:
圖1 EI6711N探測器外形結構示意圖
2.工作原理
電源電路輸出DC 9V及DC 5V電壓分別供信號檢測電路及CPU工作。總線信號接收電路對輸入總線信號整形后,接收監控設備發送的報警門限信息。剩余電流互感器的輸入信號經過取樣、濾波、整形、放大后送CPU進行A/D轉換,信號返回電路將剩余電流信息返回至總線。
技術特性
l 使用環境溫度:-10°C~+50°C;使用環境溫度:≤95%RH(不凝露)
l 總線工作電壓:24V脈動電壓;工作電流:≤0.6mA
l 線 制:兩總線(無極性)
l 總線長度:≤1500米(截面積1.0mm2銅質雙絞線RVS)
l 報警設定值:300 mA~800mA (調節精度100 mA,監控設備設置)
l 報警時間:≤ 30s
l 指示燈:報警指示燈:紅色,報警時常亮
巡檢指示燈:綠色,與監控設備通訊正常時閃亮
l 殼體材料和顏色:ABS 黑色
l 配套剩余電流互感器類型:測量范圍10mA~1000mA,輸入/輸出變比為2000:1
配套剩余電流互感器種類見表1
表1
|
探測器型號 |
過線孔尺寸
|
相線-大
額定電流
|
外形尺寸
|
適用范圍
|
安裝方式
|
|
J-EI6711N/4
|
φ49mm
|
160A
|
88×45×120mm
|
線纜
|
導軌
|
|
J-EI6711N/7
|
φ74mm
|
250A
|
118×45×152mm
|
線纜
|
導軌
|
|
J-EI6711N/9
|
φ93mm
|
400A
|
145×45×180mm
|
線纜
|
導軌
|
|
J-EI6711N/10
|
φ105mm
|
630A
|
159×45×195mm
|
線纜
|
導軌
|
|
J-EI6711N/123F
|
122mm×30mm
|
160A
|
170×45×110mm
|
銅排、線纜
|
導軌
|
|
J-EI6711N/153F
|
150mm×38mm
|
250A
|
192×45×124mm
|
銅排、線纜
|
導軌
|
|
J-EI6711N/214F
|
210mm×45mm
|
400A
|
274×45×153mm
|
銅排、線纜
|
導軌
|
|
J-EI6711N/225F
|
220mm×50mm
|
630A
|
288×45×150mm
|
銅排、線纜
|
導軌
|
安裝與布線
1.EI6711N探測器安裝在需要監控的電氣配電箱內,利用導軌安裝配件直接固定在預設的35mm金屬導軌上。
注:探測器的安裝應滿足相應安裝規范的要求,并保證探測器外殼完好無損,遇到異常現象請及時通知安裝方進行處理。嚴禁帶電開蓋進行現場維修。
2. 接線方式:總線S+、S-接線端子接監控設備總線。
3. 布線要求
先將需監測配電箱的線路斷開,三相系統將A、B、C及中性線一同穿過剩余電流互感器,單相系統將L、N一同穿過剩余電流互感器,再將線路接好。接線方式見圖2。
使用與操作
1. 登錄、編程與EI6711探測器相同,監控設備編程菜單中選擇“單路漏電探測器”,產品類型代碼為34。
2.編程后EI6711N探測器處于正常監視狀態,不應報故障或報警,巡檢指示燈周期閃亮。


